
こんにちは。築40年以上の中古マンションをフルリノベーションして、 2人の息子と猫1匹と暮らすリフォーム・リノベデザイナーのaikoです。
先日、リノベ設計デザイン・インテリアコーディネートのお手伝いをさせていただいたマンションリノベーション@東京都世田谷区が完成し、お引き渡しをさせていただきました。
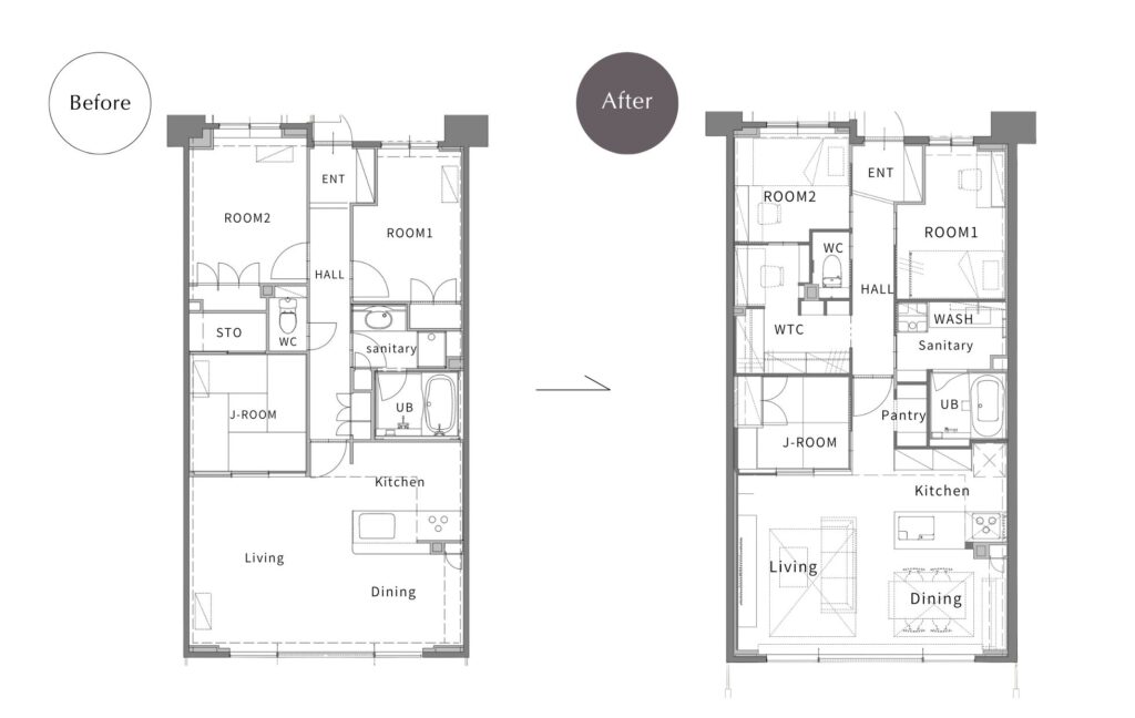
各所のbefore&after写真をご覧いただきながら、リノベーションのポイントをお伝えできればと思います。









窓からの眺めが心地よいこのキッチン。
その位置はそのままに、対面キッチンを新しくしました。慣れ親しんだ場所で、いつもの料理が、少し特別な時間に変わります。
主役は、田中工藝のオーダーキッチンです。
リブ材で仕上げた扉が、空間に個性を添えています。
天板はステンレス製。お手入れがしやすく、清潔感のある表情です。
カップボードは白を基調に。キッチンの木目が、すっきりと浮かび上がります。
吊り戸棚の上には間接照明を設け、空間全体をやわらかく包み込んでいます。
機能性とデザインが無理なく調和した、長く愛せるキッチンが完成しました。




家族でテーブルを囲む姿が、自然と思い浮かぶダイニングスペースが完成しました。
窓際に新設した間接照明が、何気ない食事の時間を特別なひとときに変えてくれます。
フルフラットのキッチンからは、配膳も片付けもスムーズ。
ダイニングテーブルの上には、お気に入りのペンダントライトを吊るす予定です。
やわらかな灯りが、家族の団らんをそっと包み込みます。


キッチンダイニングと程よい距離感のあるリビングスペース。
家族それぞれがくつろぎながら、自然と会話が生まれる空間です。
壁際に造作した収納は、TV周りの小物やゲーム類をさっと片付けられる便利さ。生活感がすっと消えます。
壁掛けTVにすることで、空間がつながり、広がりのある印象に。
グレイッシュな床材が、温かみと洗練された雰囲気を両立させています。




リビングへの入口扉を玄関側に移動させ、廊下にあった物入れをLDK側に取り込みました。
新しく生まれたパントリースペース。
食料品のストックから、つい溜まってしまう書類まで、ケースに入れて整然と収められます。
扉はあえて設けず、必要なものをさっと取り出せるように。日々の動線を考えた設計です。
来客時には、カーテンを引けば目隠しに。
見せたい時と隠したい時、どちらにも対応できる柔軟さが魅力です。




旧和室と洋室の間取りを見直し、ウォークスルーのファミリークローゼットを設けました。
家族の持ち物を一つひとつ確認しながら、ハンガーパイプの高さ、棚の奥行きを決めていきます。
「ここにしまえる」という安心感が、日々の片付けを後押ししてくれます。
注目は、洗面脱衣室からつながる動線。
洗濯物を干して、たたんで、しまう。朝の着替えも、ここで完結。家事の流れが、ぐっと楽になりました。
たっぷりの収納量と、迷わず動ける動線。この2つが揃ったとき、暮らしは本当に軽やかになります。





洋室①の収納をファミリークローゼットに集約し、洗面化粧台を広く、洗濯機も移しました。
洗面脱衣室には可動棚を設置。家族が並んで身支度できる、ゆとりある空間に生まれ変わりました。
注目は、延長した洗面カウンター。
洗濯機から衣類を取り出して、広げて、たたむ。立ったまま、その場で完結する心地よさです。
一つの動作が減るだけで、暮らしは驚くほど軽やかに。


トイレは、グレーを基調にした落ち着いた空間です。
タンクレスのすっきりとしたフォルムに、グレアレスの照明が、まぶしさを抑えて、空間全体をやわらかく照らします。
ドアを閉めた瞬間、ふっと息をつける。
そんな、ひとりの時間を大切にできる場所になりました。




床に選んだのは、やわらかな木目のグレイッシュなフローリング。
甘さを抑えた色合いが、空間に心地よい統一感をもたらします。
玄関の白いタイル土間は、光を受けて明るく。帰宅する家族を、いつも優しく迎えてくれます。
リビング扉には、透明ガラスとアルミフレームを組み合わせて。
開け放てば開放的に、閉めればゆるやかに空間を仕切る。暮らしに合わせて表情を変える扉です。


玄関収納は、状態が良かったのでそのまま使うことに。
扉の傷だけが気になっていたので、シートで仕上げ直しました。
新しくする場所、残す場所。その選択が、限られた予算を大切に使う鍵になります。
メリハリをつけることで、本当に必要な部分にしっかりと手をかけられる。
それが、納得のいくリノベーションにつながります^^


洋室は、必要な広さを見極めてシンプルに。
デスクの上には可動棚、正面の壁にはマグネット下地。
小さな工夫が、使い勝手を大きく変えます。
暮らし方を想像しながら、家具の配置を決めていく。そうすることで、自然と部屋に必要な広さが見えてきます。
自分たちの暮らしに合わせて、空間そのものをデザインできる。これこそが、リノベーションの魅力◎




旧和室を3畳ほどの畳スペースに。
小上がりの段差が、リビングとゆるやかにつながりながら、ほどよく距離を保ちます。
縁に腰かけたり、ごろんと横になったり。
この居場所が、暮らしにちょうどいいリズムを生んでくれます。
天井近くの吊り収納には、布団もすっきり収まります。床を広く使えるから、圧迫感はありません。
家族が集う場所にも、友人を泊める部屋にも。形を変えずに、役割が変わる空間です。
築20年のマンションが、S様ご家族の理想の住まいへと、生まれ変わりました。
必要な広さを見極める。暮らしやすい動線をつくる。好きなものを取り入れる。
一つひとつの選択を重ねながら、家族らしい空間が形づくられていきました。
「ここで、どんな暮らしがしたいか」。
その問いに向き合い続けた時間が、この住まいには詰まっています。
丸島建設の監督さま、職人の皆さま、丁寧な仕事をありがとうございました。
S様ご家族、理想の住まいを一緒に考える時間を、ありがとうございました。
ここからの日々を、どうぞ楽しんでください。
Designer Aruhome aiko
Building contractor 丸島建設
Aruhomeでは「そこに住む人の思い」を大切に考え、あなたの生活を豊かにするお手伝いをさせていただきます。
最後までお読みいただき、ありがとうございました。
リフォーム・リノベーションをお考えの方の参考になれば嬉しいです。
Aruhome aiko
【お問い合わせ先】
公式LINEやコンタクトからお気軽にお問い合わせください^^
| All Post |