Aruhome

Instagram

Works

05

F house

Hyogo-Kobe / House
エリア 兵庫県神戸市
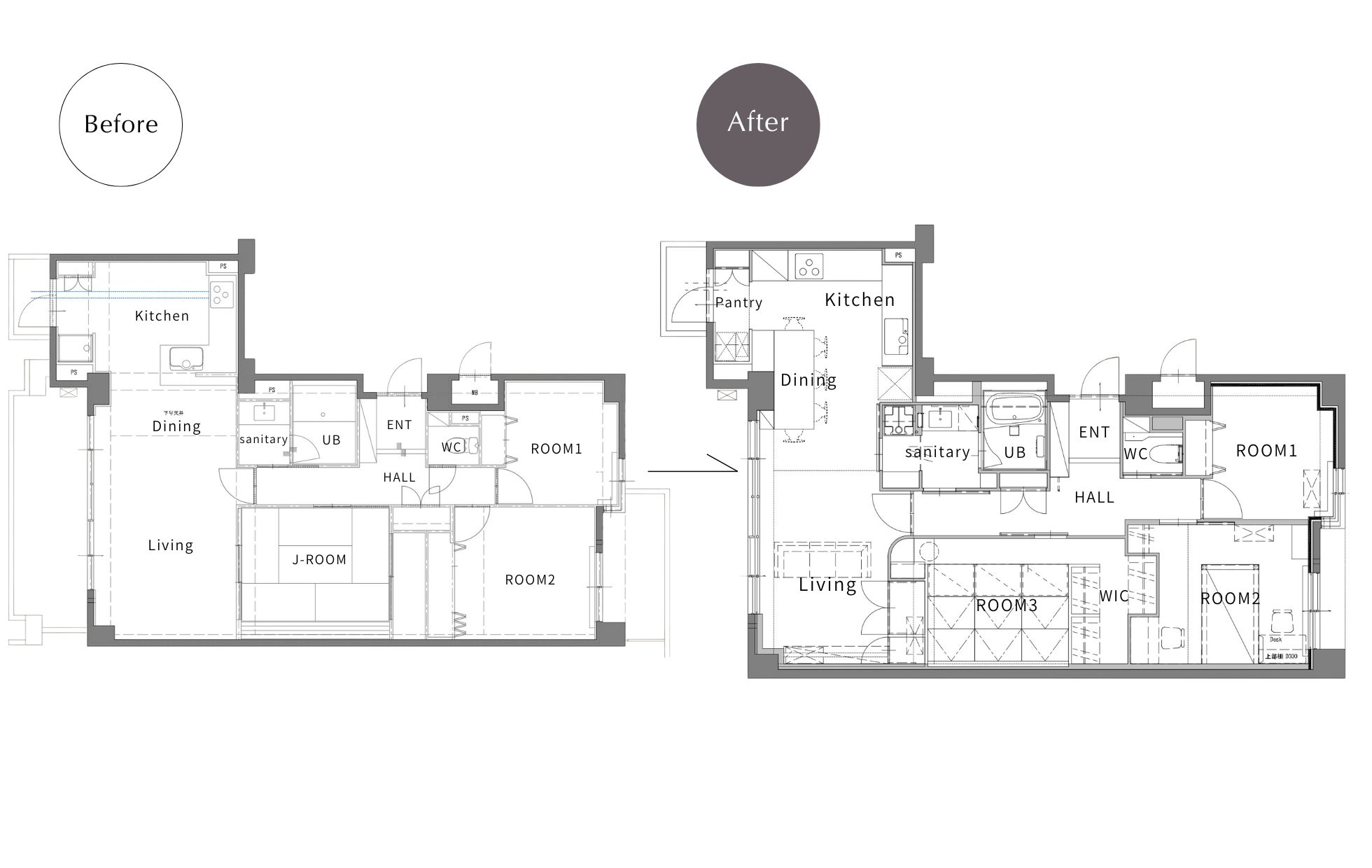
用途 中古マンションリノベーション
工期 3ヶ月
施工面積 89㎡
デザイン Aruhome
施工 GRAM/GLAD

Concept

「遊び心と暮らしやすさが調和する住まい」

築35年のマンションを、家族がのびのび暮らせる空間に。89㎡の広さを活かした、工夫いっぱいのリノベーションです。

上下に分かれた造作ベッドで、ひとつの部屋が遊び心のある楽しい空間に。リノベだからこそ叶う、ちょっと特別な間取りの工夫です。

主寝室には、小上がりのスペースを。お布団を敷いて寝られて、下にはたっぷり収納も。普段の服はWICへ、季節ものは小上がりへしまえるので、自然と片づく心地よい暮らしに。

キッチンは、壁付けのL型オーダーキッチン。ダイニングを囲むようにレイアウトし、家族が集まるあたたかな場所に。リビングとはちょうどいい距離感で、窓からの光がやさしく広がります。

洗濯機の配置を見直し、サニタリーはすっきりと。2方向から出入りできる動線で、毎日の移動もスムーズに。

暮らしの中の小さな工夫が、日々の心地よさにつながります。

All Works

Contact

どんな些細なことでも結構です。
まずはこちらのコンタクトフォームよりお気軽にお問合せください。

Contact
Form